Rue Brederode 29, 1000 BRUXELLES
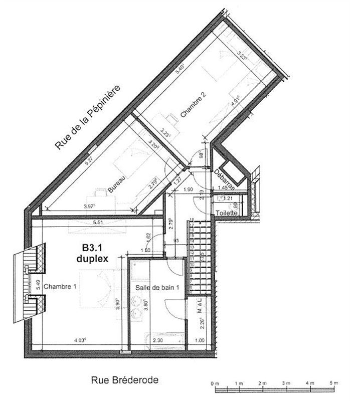
Situé dans un immeuble moderne face à la place du Trône derrière le Palais Royal, agréable duplex 4 chambres de ± 170 m² au 3e étage. Cet immeuble, à l’architecture contemporaine, offre un cadre de vie remarquable.
L'appartement se compose comme suit :
3e et 4e étage:
- Hall d'entrée avec commodités visiteurs,
- Séjour/salle à manger de ±41m²,
- Cuisine entièrement équipée,
- Hall de nuit,
- 4 belles chambres (±25, 18, 13 et 10m²),
- Une salle de douche,
- Une salle de bain,
- 2 WC séparés.
Atouts : Chaudière individuelle au gaz, système de ventilation à double flux et de châssis double vitrage. Possibilité parking. Proximité transports en communs (bus et métro)
Loyer: 2.600 € par mois + charges 335 € par mois (charges communes immeuble, assurance, entretien chaudière individuelle, frais de gestion)
PEB : C+, 97 Kwh/(m².an)*.
Libre immédiatement
4 ch
170 m2






































