Rue du Nieuwmolen 13, 1070 ANDERLECHT
ANDERLECHT CITY DOX | Prachtig appartement met 3 slaapkamers en terras
Tegenover het kanaal en vlakbij openbaar vervoer, scholen, winkels en de belangrijkste uitvalswegen, stellen wij u dit uitzonderlijk appartement voor in het prestigieuze nieuwbouwproject "City Dox".
Deze wijk in volle ontwikkeling biedt een aangename, groene en moderne leefomgeving ideaal om comfort en praktisch wonen te combineren.
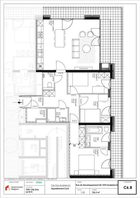
Het appartement, gelegen op de 2de verdieping, beschikt over een bewoonbare oppervlakte van ±123 m² en is ingedeeld als volgt:
- Een uitnodigende inkomhal,
- Een heldere leefruimte met grote raampartijen en toegang tot een aangenaam terras,
- Een open, volledig ingerichte keuken (oven, vitrokeramische kookplaat, koelkast, diepvries, vaatwasser),
- Een nachthal,
- 3 slaapkamers
- 3 badkamer,
- 2 aparte toiletten,
- Een wasruimte.
De residentie "City Dox" onderscheidt zich door haar hoogwaardige afwerking, een gemeenschappelijke tuin, verzorgde gedeelde ruimtes, aanwezigheid van een conciërge, een praktische fietsen berging en een uitstekende energieprestatie (EPB in opmaak).
Beschikbaar: onmiddellijk
Huurprijs: € 1.550
Lasten: (provisie voor gemeenschappelijke kosten)
Mogelijkheid tot huren van een parkeerplaats: 75 € + 10 € kosten
Een uitzonderlijk pand dat u snel moet komen ontdekken!

